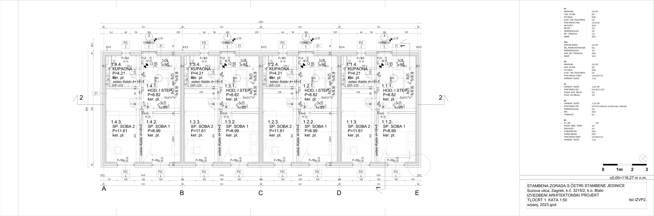
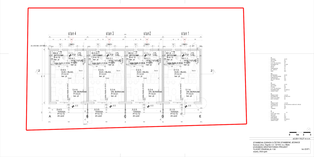
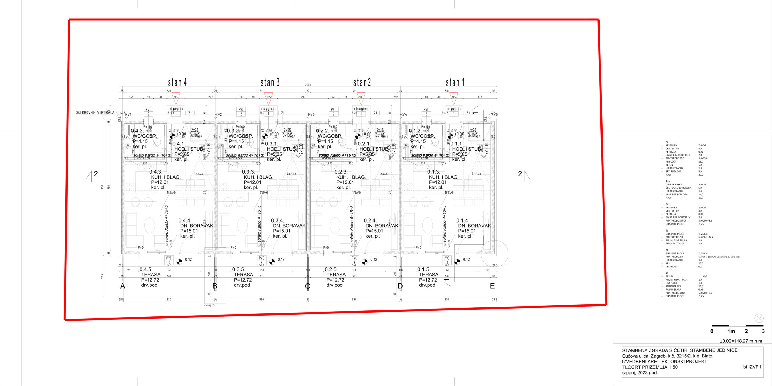
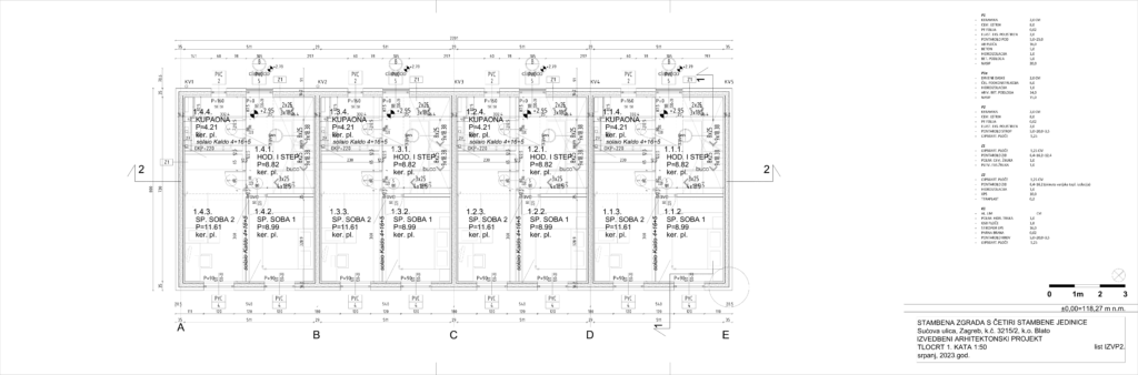
Izgradnja modularne stambene zgrade s četiri jedinice u zagrebačkom Blatu, korištenjem Pontarolo sustava. Završetak projekta planiran 2025.
Savjetovanje i analiza lokacije
Idejno rješenje i izrada Glavnog projekta
Tehnička dokumentacija i koordinacija s institucijama
Ishođenje Građevinske dozvole
Izvedbeni projekt s troškovnicima
Projektantski nadzor i podrška tijekom izgradnje